Infrastruktur


Positionen der Technik im Deckenraster

Bild der Positionen der Technik im Deckenraster

Leuchtengruppen Casambi

Bild der Leuchtengruppen Casambi

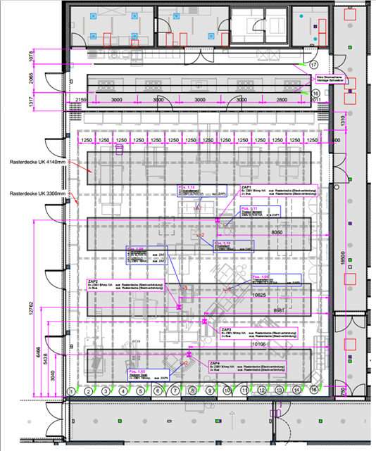
Grundriss mit Bemaßung

Bild des Grundrisses des Supermarkts

  • Deckenraster über die gesamte Fläche mit 32 Duplex Netzwerkdosen
  • Im Serverraum Anbindung über 3 Stück Cisco Meraki Switches MS350-48FP
  • und Firewall Meraki MX95,  Einrichtung von VLAN´s  ist über Dienstleister möglich
  • Aktuell sind auf dem Deckenraster noch 18 und an der Wand noch 32 Anschlüsse verfügbar
  • Internetanbindung  über VDSL 250 MBit / 40 Mbit  bzw. Glasfaser mit 1.000 Mbit / 500 Mbit

Bereits montierte Hardware:

  • 20 Xovis Sensoren für Sensalytics zzgl. im Serverraum 1 Spider
  • 10 Rasberry Pi für 12 Easyshopper, zzgl Gateway im Serverraum
  • 9 UWB Sensoren für Customer Journey, zzgl. Server im Serverrraum
  • 3 Meraki Access Points für WLAN, (1x MR46, 2x MR 36)
  • 2 Vusion Access Points für ESL System, 10 Vusion Rails, Captana Kameras
  • 2 Access Points für Vorschubsystem Neoalto / POS-Tuning
  • 7 Anschlüsse für Kassenhardware 2 x SCO, Kasse, EC, Anbindung React Audio
  • 2 Anschlüsse für Bizerba: 1 x Obstwaage, 1 Switch für Bedientheke (1 Kasse, 2 Waagen, 1 Auszeichner)
  • React Audio, 8 Lautsprecher, 1 Bedientablet, 1 Kassenschild, 2 Serviceklingeln, 2 Türkontakte
  • Desinfektionsroboter Metralabs, Serviceroboter Pepper, Photobox,  Sensape Promoter